物件概要
| 種別 | アパート | ||||||||||||
|---|---|---|---|---|---|---|---|---|---|---|---|---|---|
| 構造 | 木造 | ||||||||||||
| 築年月 | 2005/11(築20年) | ||||||||||||
| 階建 | 2階建 | ||||||||||||
| 学校区 | 菊陽中部小学校 / 菊陽中学校 | ||||||||||||
| 駐車場 | 5,500円 | ||||||||||||
| 交通機関 |
|
||||||||||||
| 周辺環境 |
|
入居者募集中のお部屋
レオパレス里 (0202) / 1K オススメ
駐車場有★防犯カメラ★宅配ボックス★スマートロック★敷金不要
| 賃料 | 92,000円 | 管理費・ 共益費 |
6,500円 |
|---|---|---|---|
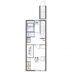
| 間取 | 1K ( 洋 8.2帖 ) | 専有面積 | 26.08㎡ |
| 敷金/礼金 | −/2ヶ月 | 保証金/ 補修費・分担金 |
−/− |
| 階 | 2階 | 駐車場 |
5,500円 |
| 設備 | 宅配ボックス / 駐輪場 / コンビニ近い / LPガス / 水道(公営) / 排水(公共下水) / 防犯カメラ / 地上デジタル / 屋根無駐車場 / コンクリート舗装 / 給湯(LPガス) / 冷暖房 / 室内洗濯置場 / フローリング / 家具付 / 専用浴室(トイレ別) / 専用トイレ(水洗) / 洗面(浴室と一緒) / 洋間 / クローゼット / 浴室乾燥機 / ウォシュレット / IHヒーター / モニター付インターホン(カラー) / 家電付き | ||
| 担当店舗 |
コスギ不動産リーシング 光の森支店 TEL. 096-213-5500 |
||
お電話・来店、お問い合わせは コスギ不動産リーシング 光の森支店まで
-貴方の夢を叶えます-
〒869-1108
菊池郡菊陽町光の森2丁目29-4
菊池郡菊陽町光の森2丁目29-4
fax. 096-213-5222

