物件概要
| 種別 | アパート | |||||||||||||||||||||
|---|---|---|---|---|---|---|---|---|---|---|---|---|---|---|---|---|---|---|---|---|---|---|
| 構造 | 鉄骨造 | |||||||||||||||||||||
| 築年月 | 2005/11(築20年) | |||||||||||||||||||||
| 階建 | 2階建 | |||||||||||||||||||||
| 学校区 | 西合志東小学校 / 西合志南中学校 | |||||||||||||||||||||
| 駐車場 | 敷地内駐車場あり 5,500円(税込) | |||||||||||||||||||||
| 交通機関 | ||||||||||||||||||||||
| 周辺環境 |
|
入居者募集中のお部屋
ソレイユ須屋 (0201) / 2LDK オススメ
「一棟貸しのみ可能(法人契約)」賃貸募集開始しました♪
| 賃料 | 80,000円 | 管理費・ 共益費 |
3,000円 |
|---|---|---|---|
| 間取 | 2LDK ( LDK 10.6帖 / 洋 7.3帖 / 洋 6.3帖 ) | 専有面積 | 64.06㎡ |
| 敷金/礼金 | 1ヶ月/− | 保証金/ 補修費・分担金 |
−/− |
| 階 | 2階 | 駐車場 | 敷地内駐車場あり 5,500円(税込) |
| 設備 | LPガス / 水道(公営) / 排水(公共下水) / ペット可 / 地上デジタル / 屋根付き駐車場 / アスファルト舗装 / 給湯(LPガス) / シャワー / 冷暖房 / インターホン(TV) / 室内洗濯置場 / フローリング / ロフト / シャンプードレッサー / 電話設置可 / バルコニー / 専用台所 / ガスコンロ設置可 / 専用浴室(トイレ別) / 専用トイレ(水洗) / 洗面(浴室別) / クローゼット / シューズボックス / ウォシュレット / モニター付インターホン(カラー) / 角部屋 / ペット可 / サーモ水栓 | ||
| 担当店舗 |
コスギ不動産リーシング 光の森支店 TEL. 096-213-5500 |
||
ソレイユ須屋 (0202) / 2LDK オススメ
| 賃料 | 80,000円 | 管理費・ 共益費 |
3,000円 |
|---|---|---|---|
| 間取 | 2LDK ( LDK 10.6帖 / 洋 7.3帖 / 洋 6.3帖 ) | 専有面積 | 64.06㎡ |
| 敷金/礼金 | 1ヶ月/− | 保証金/ 補修費・分担金 |
−/− |
| 階 | 2階 | 駐車場 | 敷地内駐車場あり 5,500円(税込) |
| 設備 | LPガス / 水道(公営) / 排水(公共下水) / ペット可 / 地上デジタル / 屋根付き駐車場 / アスファルト舗装 / 給湯(LPガス) / シャワー / 冷暖房 / インターホン(TV) / 室内洗濯置場 / フローリング / ロフト / シャンプードレッサー / 電話設置可 / バルコニー / 専用台所 / ガスコンロ設置可 / 専用浴室(トイレ別) / 専用トイレ(水洗) / 洗面(浴室別) / クローゼット / シューズボックス / ウォシュレット / モニター付インターホン(カラー) / ペット可 / サーモ水栓 | ||
| 担当店舗 |
コスギ不動産リーシング 光の森支店 TEL. 096-213-5500 |
||
ソレイユ須屋 (0203) / 2LDK オススメ
| 賃料 | 80,000円 | 管理費・ 共益費 |
3,000円 |
|---|---|---|---|
| 間取 | 2LDK ( LDK 10.6帖 / 洋 7.3帖 / 洋 6.3帖 ) | 専有面積 | 64.06㎡ |
| 敷金/礼金 | 1ヶ月/− | 保証金/ 補修費・分担金 |
−/− |
| 階 | 2階 | 駐車場 | 敷地内駐車場あり 5,500円(税込) |
| 設備 | LPガス / 水道(公営) / 排水(公共下水) / ペット可 / 地上デジタル / 屋根付き駐車場 / アスファルト舗装 / 給湯(LPガス) / シャワー / 冷暖房 / インターホン(TV) / 室内洗濯置場 / フローリング / ロフト / シャンプードレッサー / 電話設置可 / バルコニー / 専用台所 / ガスコンロ設置可 / 専用浴室(トイレ別) / 専用トイレ(水洗) / 洗面(浴室別) / クローゼット / シューズボックス / ウォシュレット / モニター付インターホン(カラー) / ペット可 / サーモ水栓 | ||
| 担当店舗 |
コスギ不動産リーシング 光の森支店 TEL. 096-213-5500 |
||
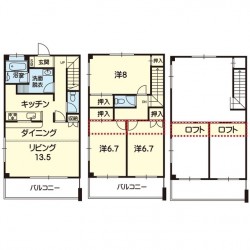
ソレイユ須屋 (0204) / 3LDK オススメ
| 賃料 | 90,000円 | 管理費・ 共益費 |
3,000円 |
|---|---|---|---|
| 間取 | 3LDK ( LDK 13.5帖 / 洋 6.7帖 / 洋 8帖 / 洋 6.7帖 ) | 専有面積 | 96.08㎡ |
| 敷金/礼金 | 1ヶ月/− | 保証金/ 補修費・分担金 |
−/− |
| 階 | 2階 | 駐車場 | 敷地内駐車場あり 5,500円(税込) |
| 設備 | LPガス / 水道(公営) / 排水(公共下水) / ペット可 / 地上デジタル / 屋根付き駐車場 / アスファルト舗装 / 給湯(LPガス) / シャワー / 冷暖房 / インターホン(TV) / 室内洗濯置場 / フローリング / ロフト / シャンプードレッサー / 電話設置可 / バルコニー / 専用台所 / ガスコンロ設置可 / 専用浴室(トイレ別) / 専用トイレ(水洗) / 洗面(浴室別) / クローゼット / シューズボックス / ウォシュレット / 対面カウンターキッチン / モニター付インターホン(カラー) / 角部屋 / ペット可 / サーモ水栓 | ||
| 担当店舗 |
コスギ不動産リーシング 光の森支店 TEL. 096-213-5500 |
||
お電話・来店、お問い合わせは コスギ不動産リーシング 光の森支店まで
-貴方の夢を叶えます-
〒869-1108
菊池郡菊陽町光の森2丁目29-4
菊池郡菊陽町光の森2丁目29-4
fax. 096-213-5222

