 
                外観
             
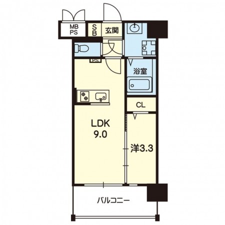
                間取
            概要
| 種別 | マンション | 構造 | 鉄筋コンクリート造 | 
|---|---|---|---|
| 間取 | 1LDK ( LDK 9帖 / 洋 3.3帖 ) | 専有面積 | 31.00㎡ | 
| 築年月 | 2025/9(新築) | 敷金/礼金 | −/− | 
| 学校区 | 向山小学校 / 江南中学校 | 所在地 | 熊本市中央区本山1丁目6-24 | 
| 保証金/ 補修費・分担金 | −/− | 交通機関 | 
 | 
| 階建/階 | 地上10階/9階 | 部屋向き | 西 | 
| 駐車場 | 敷地内駐車場あり 8,800円〜19,800円(税込) 空要確認 | めやす賃料 | 64,500円 ※めやす賃料とは | 
| 設備 | オートロック / 敷地内ゴミ置き場 / 敷地内ゴミストッカー / エレベータ / 宅配ボックス / 駐輪場 / LPガス / 水道(公営) / 排水(公共下水) / 防犯カメラ / メールBOX(ダイヤル式) / 地上デジタル / インターネット無料 / BSアンテナ・CSアンテナ / アスファルト舗装 / 一部屋根付駐車場 / コンクリート舗装 / 給湯(LPガス) / シャワー / 冷暖房 / インターホン(TV) / 室内洗濯置場 / システムキッチン / シャンプードレッサー / 電話設置可 / バルコニー / 追い焚き / 専用台所 / ガスコンロ / 専用浴室(トイレ別) / 専用トイレ(水洗) / 洗面(浴室別) / クローゼット / シューズボックス / 浴室乾燥機 / ウォシュレット / ディンプルキー / 2口ガスコンロ / 対面カウンターキッチン / モニター付インターホン(カラー) / サーモ水栓 | ||
| 取引態様 | 媒介 | ||
オートロック・TVモニターホンや防犯カメラ完備でセキュリティも利便性も充実している新築マンションです♪
        
            | 周辺環境 | 
 | スマートフォン用QRコード | バーコードリーダーアプリでQRコードを読み取り、簡単にスマホサイトへアクセスすることができます。 | 
|---|
※賃料・間取はサイト掲載時のものです。現状と異なる場合は現状を優先します。
お電話・来店、お問い合わせは コスギ不動産リーシング 熊本駅支店まで
お問い合わせ番号: 3743-0906
                     
                JR熊本駅西口(新幹線口) 徒歩1分
                    コスギ不動産リーシング 熊本駅支店
                                tel. 096-312-5400
                                
                                                                            月・木・金・土 / 10:00~18:00
                                                                                日・祝 / 10:00~17:00
                                                                                                                            定休日 / 
                                                                                                火曜日・水曜日(1~3月は水曜日のみ休業)・年末年始・GW・お盆                                                                                            
                                                                        
                            
                                〒860-0047
熊本市西区春日3丁目24-20
                        熊本市西区春日3丁目24-20
fax. 096-312-5401
                            ※各キャンペーンの併用不可。
    ※間取り図が現況と異なる場合、現況を優先させて頂きます。


 
                
                 
                
                 
                
                 
                
                 
                
                 
                
                 
                
                 
                
                 
                
                 
                
                 
                
                 
                
                 
                
                 
                
                 
                
                 
                
                 
                
                 
                
                 
                
                 
             
             
             
             
             
         
 
 
 
 
