千葉城ビルⅡ (0403)

35,000(管理費等 2,000円)

熊本市中央区千葉城町3-20

インターネット無料
オススメ
種別
マンション(--) ・4階建 ・築28年
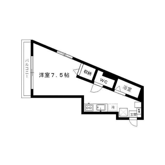
間取り
1R (22.59㎡)
駐車場
交通
熊本市電2系統 熊本城・市役所前 徒歩7分
熊本市電2系統 通町筋 徒歩7分
熊本電気鉄道 藤崎宮前 徒歩10分
熊本都市バス 県立美術館分館横 徒歩2分
産交バス(熊本市周辺) 家庭裁判所前 徒歩3分
熊本電鉄バス 城東町 徒歩3分
学校区
城東小学校 / 藤園中学校

GoogleMapで表示

ネット無料★TVドアホン★CATV★南向き★敷金礼金不要

主要幹線道路近く♪熊本城・繁華街まで徒歩圏内♪物件すぐ近くにバス停3ヵ所あり♪熊本電鉄駅・市電駅2ヵ所まで徒歩7分♪徒歩5分内にコンビニ・スーパー・飲食店♪交通の利便性が良く一人暮らしにお勧めの物件♪

物件情報

物件番号 95502-0403
賃料 35,000円
管理費等 2,000円
敷金
礼金
保証金/
補修費・分担金
−/−
間取 1R ( 洋 7.5帖 )
専有面積 22.59㎡
所在地 熊本市中央区千葉城町3-20
学校区 城東小学校 / 藤園中学校
種別 マンション
構造 --
築年月 1997/11(築28年)
交通機関
  • 熊本市電2系統 熊本城・市役所前 徒歩7分
  • 熊本市電2系統 通町筋 徒歩7分
  • 熊本電気鉄道 藤崎宮前 徒歩10分
  • 熊本都市バス 県立美術館分館横 徒歩2分
  • 産交バス(熊本市周辺) 家庭裁判所前 徒歩3分
  • 熊本電鉄バス 城東町 徒歩3分
階/階建 4階 / 4階建
部屋向き
駐車場
取引態様 媒介
めやす賃料 37,000円 ※めやす賃料とは

※各キャンペーンの併用不可。
※間取り図が現況と異なる場合、現況を優先させて頂きます。

設備

コンビニ近い / LPガス / 水道(公営) / 排水(公共下水) / CATV / 地上デジタル / インターネット無料 / アスファルト舗装 / 屋根無駐車場 / 給湯(LPガス) / シャワー / 冷暖房 / 室内洗濯置場 / フローリング / WINクローゼット / バルコニー / ガスコンロ設置可 / 専用浴室(トイレ別) / 洗面(浴室別) / 洋間 / クローゼット / シューズボックス / モニター付インターホン(カラー) / 角部屋

周辺環境

城東小学校 ・・・ 200m (徒歩 約3分)
藤園中学校 ・・・ 210m (徒歩 約3分)
イワサキACE 並木坂店 ・・・ 330m (徒歩 約5分)
セブンイレブン 熊本坪井1丁目店 ・・・ 320m (徒歩 約4分)

千葉城ビルⅡ (0403)
についてのお問い合わせ

コスギ不動産リーシング いい部屋ネット熊本店

月・木・金・土 / 10:00~18:00
日・祝 / 10:00~17:00
定休日 / 火曜日・水曜日(1~3月は水曜日のみ休業)・年末年始・GW・お盆

〒862-0976
熊本市中央区九品寺1丁目1番5号 RISE KUMAMOTO EXE 2-B号